MEBS6000:
Utility Services
Lifts
and Escalators - Lift Traffic and Components
1. Lift Traffic Analysis
-
Assessment of demand
-
Lift traffic calculations
-
Round trip time (RTT) equation
-
Assumptions and waiting time
-
Use of computer software
2. Advanced Traffic Planning
-
Basic issues and key considerations
-
Building categorization
-
Residential
-
Public service
-
Hospital and multi-purpose buildings
-
Commercial mid-, high- and mega
high rise -buildings
3. Lift Components
-
Electric traction lift
-
Roping systems and motor drives
-
Hydraulic lift
-
Firefighting or Fireman’s lift
PowerPoint files: [Lift
and Escalators - Lift Traffic and Components]
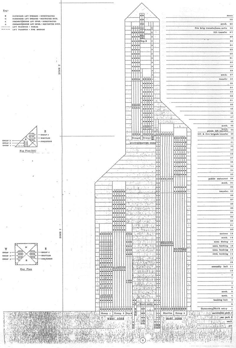
Examples of lift systems
for highrise buildings in Hong Kong [Example1][Example2][Example3]
Computer Software (Lift Traffic Analysis):
Further Reading:
-
Barney, G. C., 2003. Elevator
Traffic Handbook: Theory and Practice, Chapters 4 & 5, Spon Press,
London & New York. [621.877
B261 e]
-
CIBSE, 2000. Transportation
Systems in Buildings, CIBSE Guide D, Sections 3 & 7, Chartered
Institution of Building Services Engineers (CIBSE), London. [LB
690.183 T7]
-
BSI, 2002. British Standard
BS 5655-6: 2002, Lifts and Service Lifts -- Part 6: Code of Practice for
the Selection and Installation of New Lifts, British Standards Institution
(BSI), London. [search
at HKU Library]
-
General Planning Guidance for
Elevators and Escalators [PDF]
Web Links:
| Created: Sep 2005 | Update:
24 Sep 2005 | By: cmhui@hku.hk |