10. Air Conditioning and Ventilation Systems
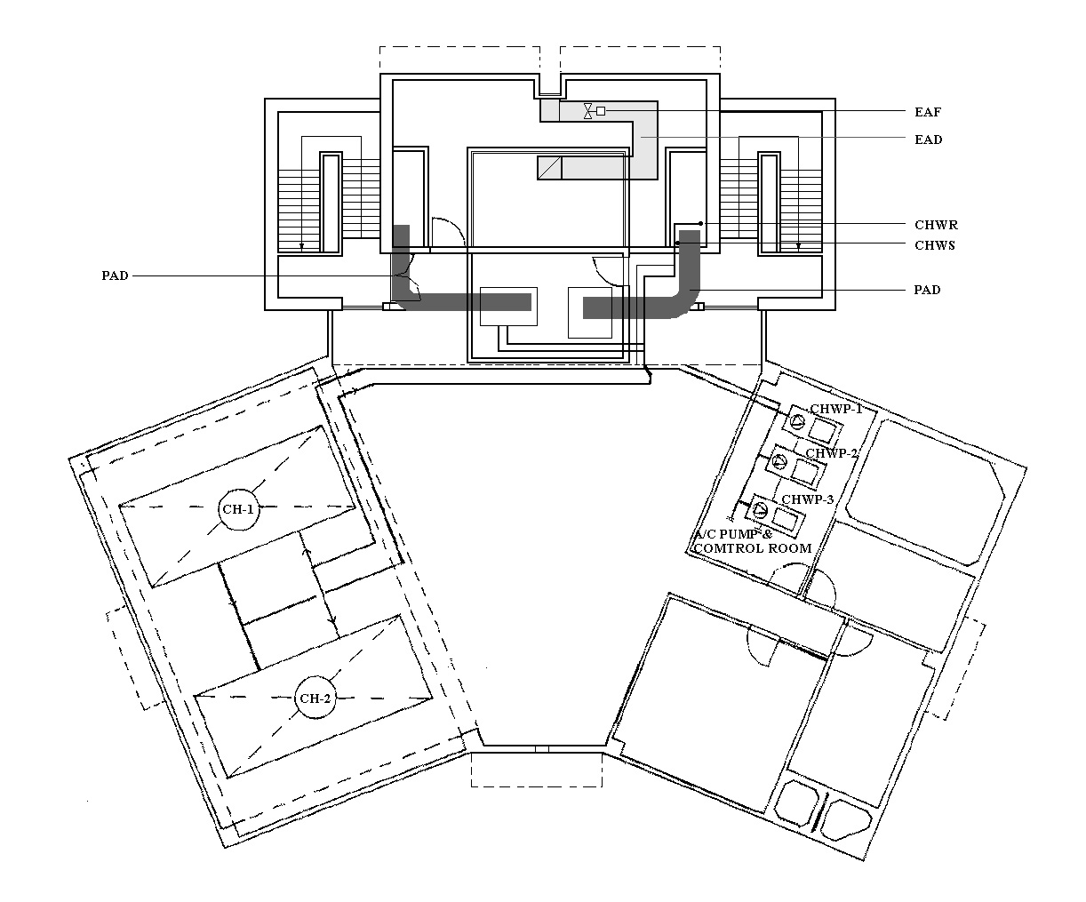
10.11 Roof - A/C Layout
11.1 Fire Detection and Alarm System Schematic Diagram
Table of Content
10.10 7/F - A/C Layout