10.Air Conditioning and Ventilation Systems
10.9 5/F - A/C Layout
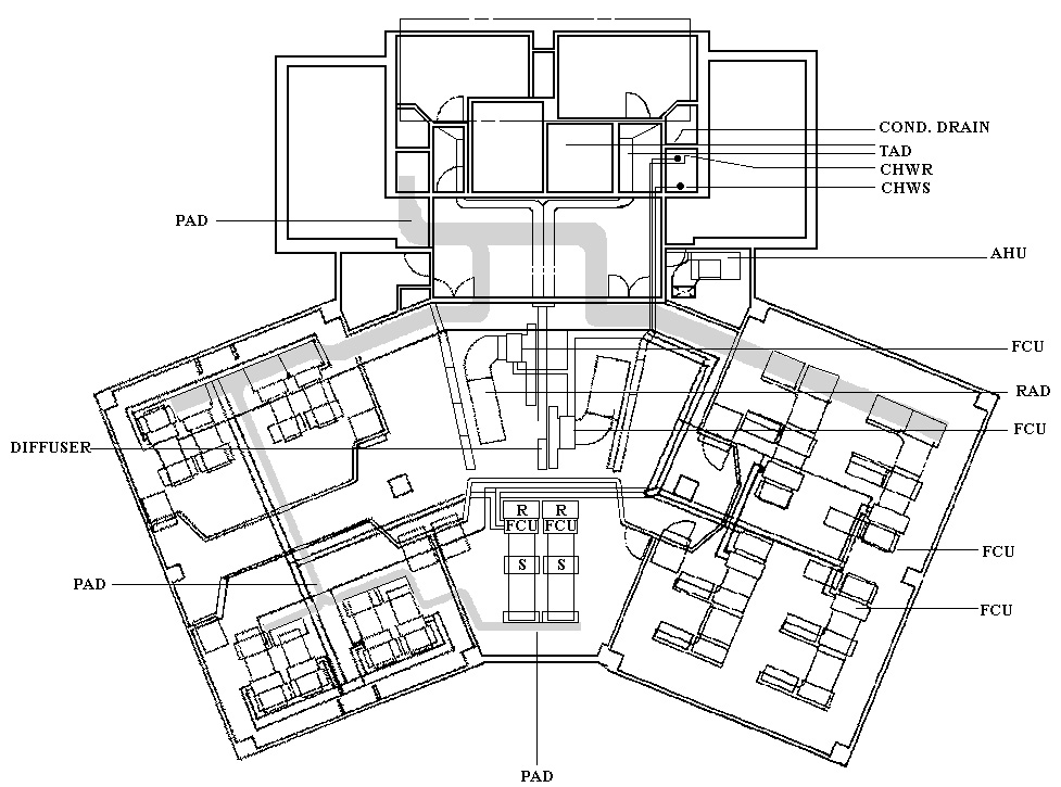
10.10 7/F - A/C Layout
Table of Content
10.8 2/F - A/C Layout