13. Electric Services and Lifts
13.4 1/F - Power Layout
13.5 3/F - Power Layout
Table of Content
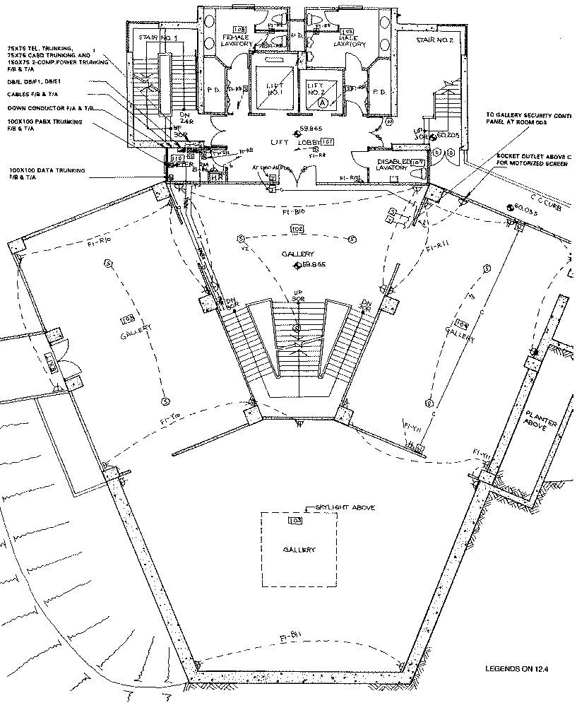
13.3 G/F - Power Layout