13. Electric Services and Lifts
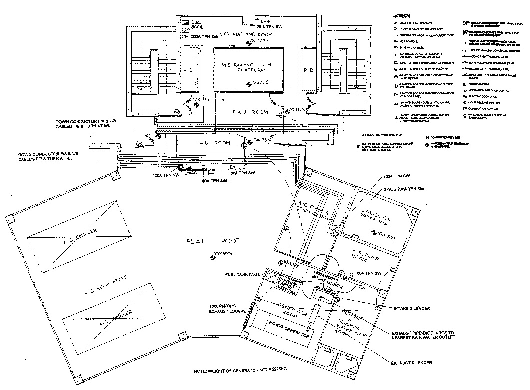
13.6 Roof - Power Layout
13.7 Installation I
Table of Content
13.5 3/F - Power Layout