21. Details of Structural Systems
21.6 Upper Floor & Roof Structural Dimensions : Slab, Beam, Column
21.7 Upper Roof Structural Dimensions : Slab, Beam, Column
Table of Content
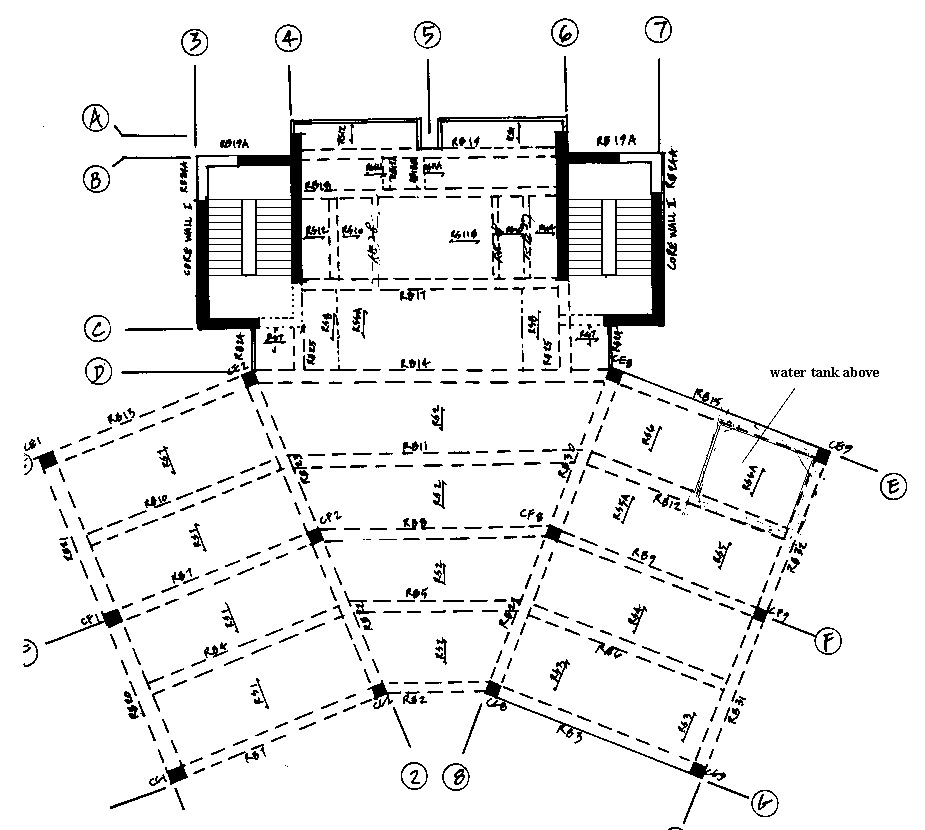
21.5 5/F Structural Dimensions : Slab, Beam, Column