22. Framing Plans
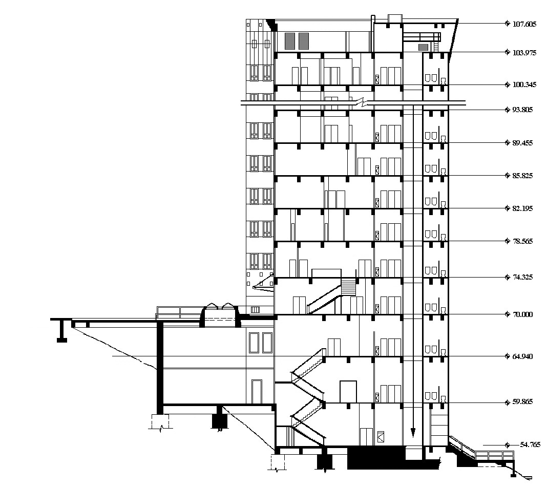
22.5 typical vertical Section
22.6 Design of Caisson I
Table of Content
22.4 Upper Roof Framing Plan