11. Fire Services Installations
11.5 FS Control Centre and Pump Control Panels
Pump control Panel Layout ( for FTP )
Pump Control Panel Layout ( for SP & FTP )
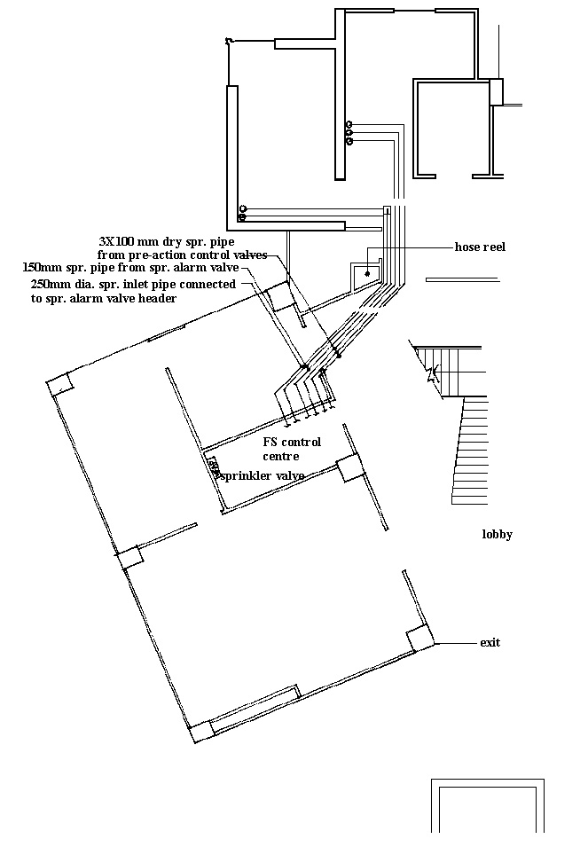
Fire Services Control Centre on 3/F
11.6 /F - Sprinkler Layout
Table of Content
11.4 Sprinkler Schematic Details