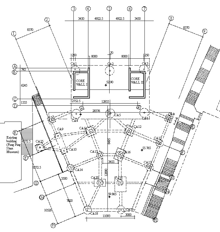
2. Foundation
2.3 Caissons II
2.4 Caissons III
Table of Content
2.2 Caissons I