3. External Wall
3.3 Building Section I
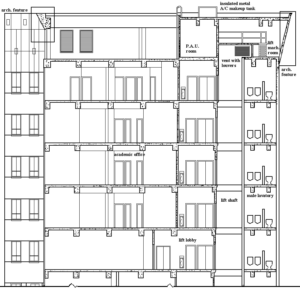
3.4 Building Section II
Table of Content
3.1 Introduction I