3.External Wall
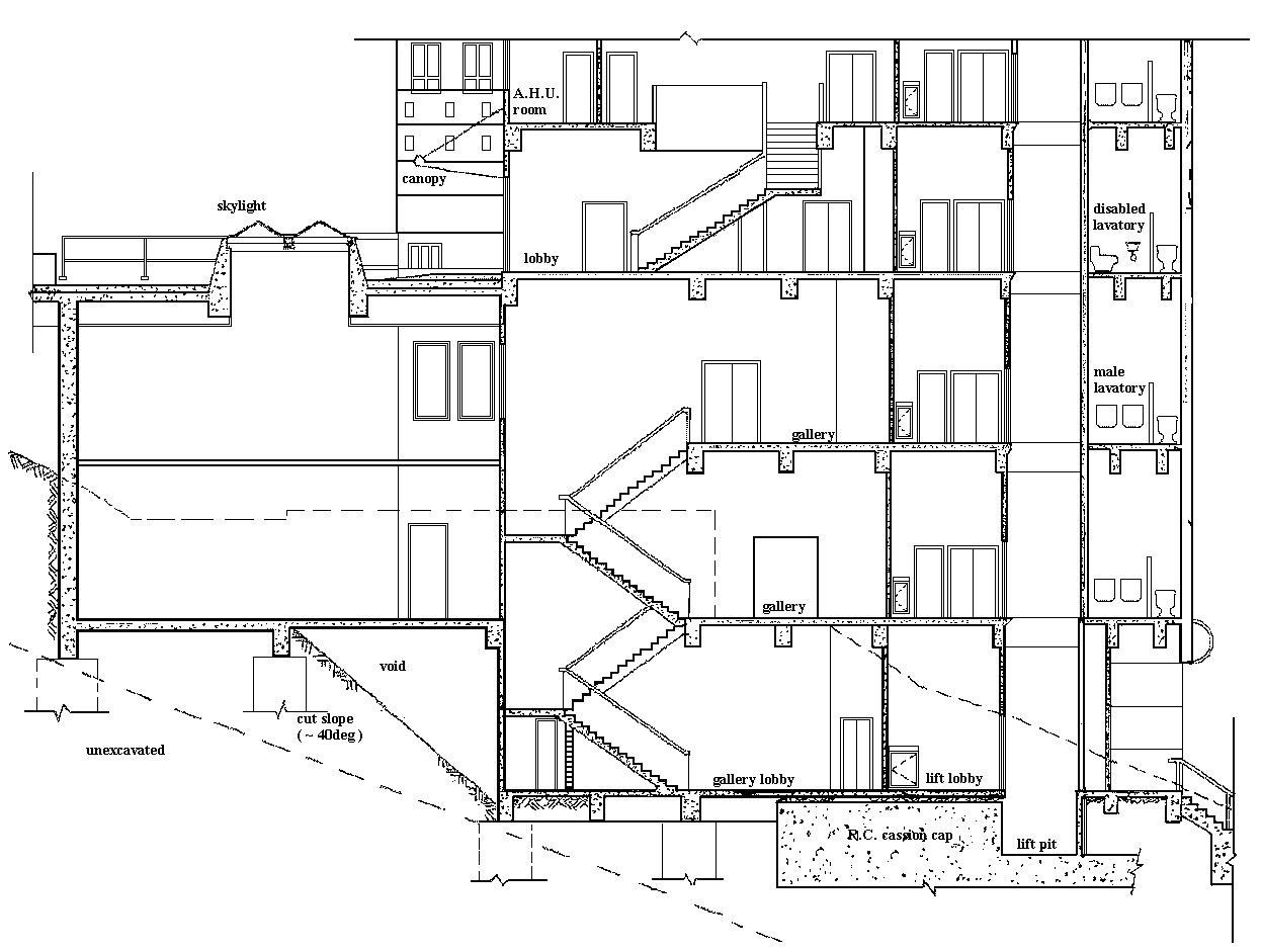
3.4 Building Section II
3.5 Architectural Feature Details
Table of Content
3.3 Building Section I