3. External Wall
3.5 Architectural feature Details
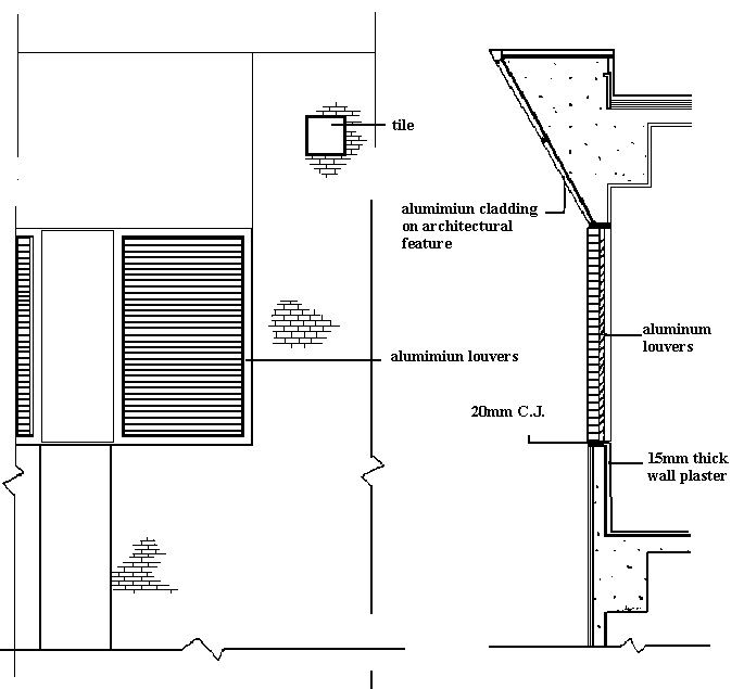
Architectural Feature A
Architectural Featuer B
Architectural Feature C
3.6 Skyligth Details
Table of Content
3.4 Building Section II